APPARTEMENT S
Surélévation d'un appartement en dernier étage
Paris, France

FICHE TECHNIQUE
MAITRE D'OUVRAGE
privé
MISSION
Mission complète (2020)
PROGRAMME
Rénovation d'un appartement
SURFACE
80 + 80 m²
BUDGET
150 000 + 150 000 €
DELAIS
études 12 mois
chantier 6 + 2 mois
DESCRIPTION
PROJET
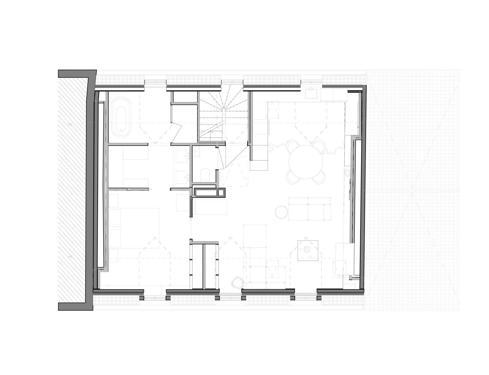
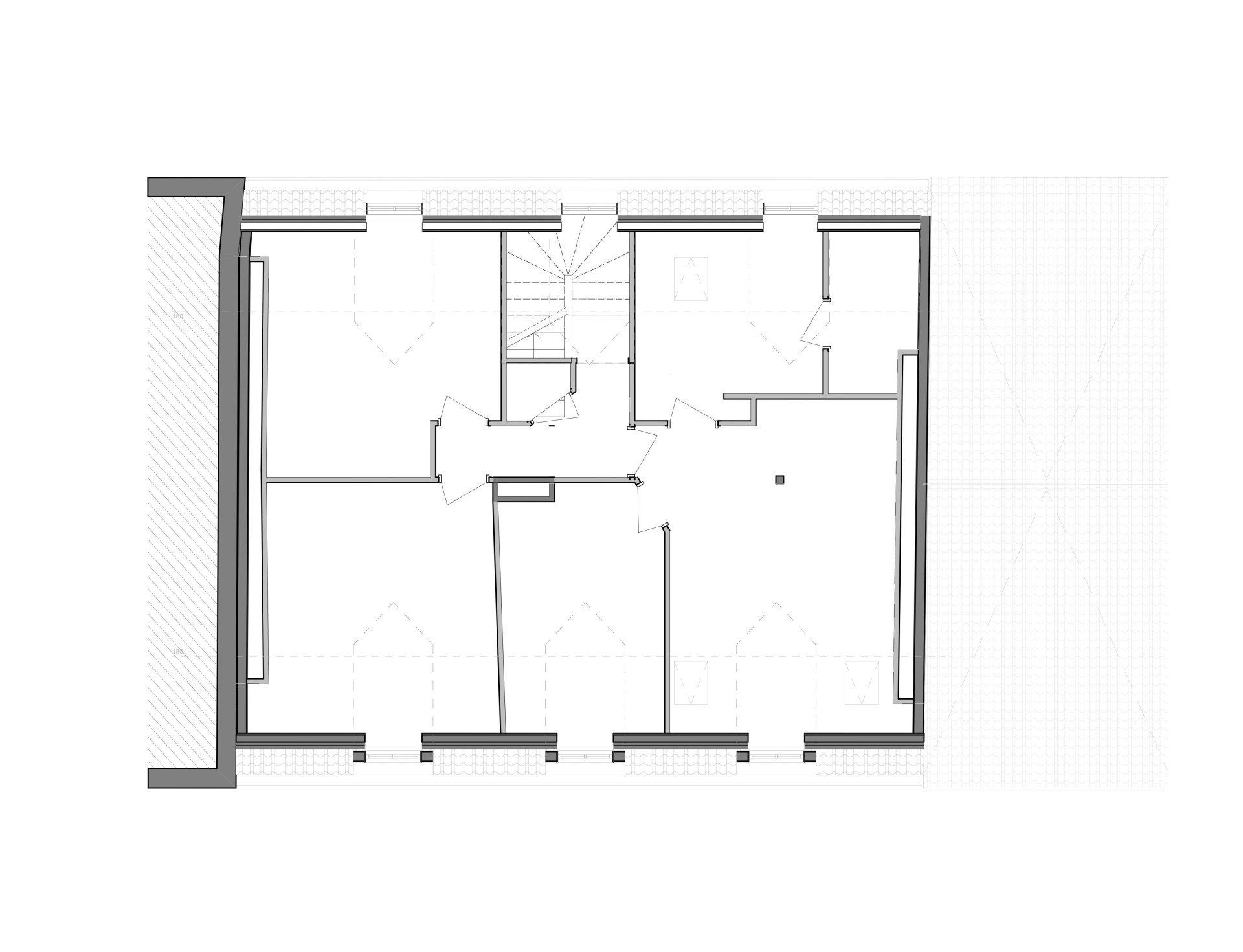
L’objet de cette étude s’inscrit dans un processus de réhabilitation lourde avec phasage.
Dans un premier temps, nous avons proposé de réunir les différents lots existants situés au 3ème étage d’une copropriété parisienne pour les transformer en un seul appartement.
Dans un second temps, nous avons travaillé sur l’objectif d’adjoindre un niveau supplémentaire, grâce à une surélévation permettant d’ obtenir un duplex en dernier étage. La composition architecturale traversante, les vues dégagées sur l’environnement urbain de Paris et l’usage de matériaux bio-sourcés font de ce logement un projet s’inscrivant dans une architecture répondant aux standards de l’ habitat contemporain.
CONTEXTE
Située en plein cœur de Paris
Vue remarquable sur la ville
Architecte des bâtiments de France



